Vivienda unifamiliar
Arquitectura - Residencial

Vivienda unifamiliar

Villanueva de la Cañada

Ficha del proyecto
Obra
Vivienda unifamiliar aislada
Tipología
Residencial
Localización
Villanueva de la Cañada
Madrid - España
Año
2013
Cliente
Particular
Superficie
354m2

La vivienda se emplaza en un solar donde la localización en la trama urbana y la orientación invitan a una ubicación de la vivienda y un tratamiento de las fachadas muy determinado. Orientación norte y trama urbana contra orientación sur y paisaje abierto, nos hacen decantarnos por una vivienda en forma de “L”, consiguiendo el máximo espacio de espacio exterior/jardín protegido por el volumen de la vivienda.

Del mismo modo, la vivienda se cierra al norte mediante una fachada con pequeños huecos y se abre al sur y al paisaje con grandes ventanales conectados con el jardín.

Ficha del proyecto
Obra
Vivienda unifamiliar aislada
Tipología
Residencial
Localización
Villanueva de la Cañada
Madrid - España
Año
2013
Cliente
Kofe Korner
Superficie
354m2
Vivienda unifamiliar - 1
Vivienda unifamiliar - 2
Vivienda unifamiliar - 3
Vivienda unifamiliar - 4
Vivienda unifamiliar - 5
Vivienda unifamiliar - 6
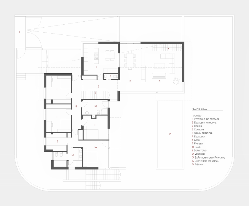
Vivienda unifamiliar - planta baja
Vivienda unifamiliar - planta primera
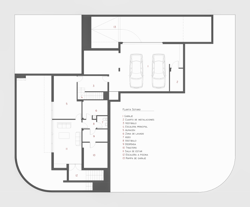
Vivienda unifamiliar - planta sótano
Vivienda unifamiliar - alzados

La vivienda se emplaza en un solar donde la localización en la trama urbana y la orientación invitan a una ubicación de la vivienda y un tratamiento de las fachadas muy determinado. Orientación norte y trama urbana contra orientación sur y paisaje abierto, nos hacen decantarnos por una vivienda en forma de “L”, consiguiendo el máximo espacio de espacio exterior/jardín protegido por el volumen de la vivienda.

Del mismo modo, la vivienda se cierra al norte mediante una fachada con pequeños huecos y se abre al sur y al paisaje con grandes ventanales conectados con el jardín.

Política de Cookies

Las cookies son breves informaciones que se envían y almacenan en el disco duro del ordenador del usuario a través de su navegador cuando éste se conecta a una web. Las cookies se pueden utilizar para recaudar y almacenar datos del usuario mientras está conectado para facilitarle los servicios solicitados y que en ocasiones no se suelen conservar. Las cookies pueden ser propias o de terceros.

Existen varios tipos de cookies:

  • Cookies técnicas que facilitan la navegación del usuario y la utilización de las diferentes opciones o servicios que ofrece la web como identificar la sesión, permitir el acceso a determinadas áreas, facilitar pedidos, compras, cumplimentación de formularios, inscripciones, seguridad, facilitar funcionalidades (vídeos, redes sociales, etc.).
  • Cookies de personalización que permiten al usuario acceder a los servicios según sus preferencias (idioma, navegador, configuración, etc.).
  • Cookies de análisis que permiten el análisis anónimo del comportamiento de los usuarios de la web y que permiten medir la actividad del usuario y elaborar perfiles de navegación con el objetivo de mejorar los sitios web.

Por ello, al acceder a nuestra web, en cumplimiento del artículo 22 de la Ley 34/2002 de Servicios de la Sociedad de la Información, en tratar cookies de análisis, le hemos solicitado su consentimiento para su uso. Todo ello para mejorar nuestros servicios. Utilizamos Google Analytics para recopilar información estadística anónima, como por ejemplo el número de visitantes a nuestra web. Las cookies añadidas por Google Analytics se rigen por las políticas de privacidad de Google Analytics. Si usted lo desea puede desactivar las cookies de Google Analytics.

De todos modos, le informamos que puede activar o desactivar estas cookies siguiendo las instrucciones de su navegador de Internet.