Vivienda Maragatería
Arquitectura - Residencial

Vivienda Unifamiliar

Valdebebas. Madrid

Ficha del proyecto
Obra
Vivienda unifamiliar
Tipología
Residencial
Localización
Valdebebas
Madrid
Año
2017
Cliente
Particular
Superficie
379m2

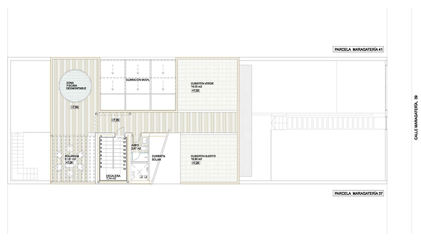
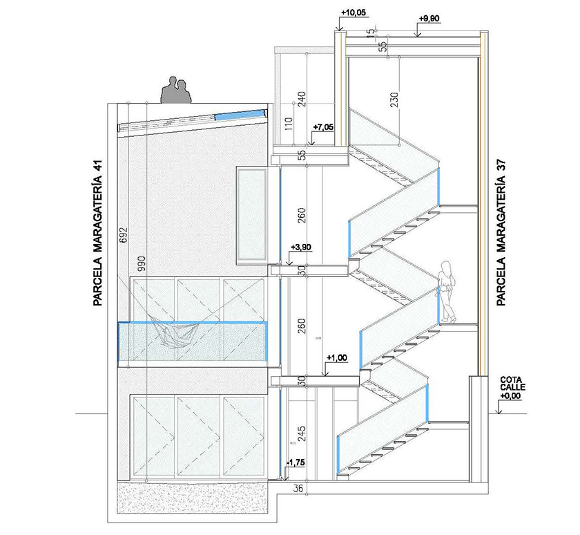
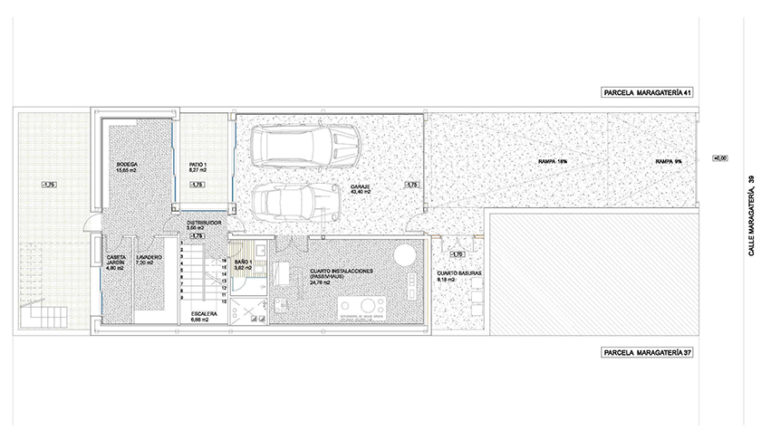
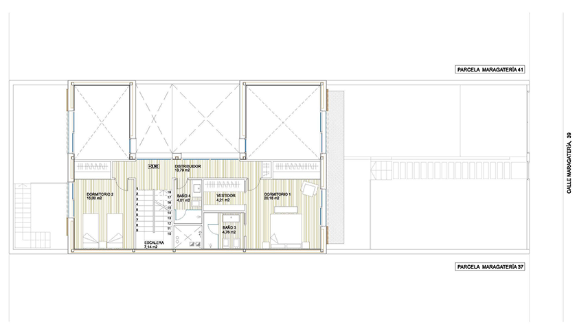
Se nos encarga el Proyecto Básico de una vivienda siguiendo los parámetros del PASSIVHAUS. Para generar el menor consumo de energía se ha desarrollado esta tipología de vivienda en la que el patio interior contribuye a garantizar una calidad del aire interior gracias a la ventilación cruzada, aprovechando al máximo el soleamiento y reduciendo por tanto el consumo energético al mínimo. Según esto la edificación proyectada mantiene un volumen único, constituido por dos plantas sobre rasante organizadas en torno a un patio y una planta bajo rasante con patio posterior.

La fachada ventilada, la cubierta plana de tipo ajardinada y el sistema de instalaciones propuesto, contribuyen de igual manera al diseño de una vivienda de consumo casi nulo.

Ficha del proyecto
Obra
Vivienda unifamiliar
Tipología
Residencial
Localización
Valdebebas
Madrid
Año
2017
Cliente
Particular
Superficie
379m2
Vivienda Maragatería 1
Vivienda Maragatería 2
Vivienda Maragatería 3
Vivienda Maragatería 4
Vivienda Maragatería 5
Vivienda Maragatería 6

Se nos encarga el Proyecto Básico de una vivienda siguiendo los parámetros del PASSIVHAUS. Para generar el menor consumo de energía se ha desarrollado esta tipología de vivienda en la que el patio interior contribuye a garantizar una calidad del aire interior gracias a la ventilación cruzada, aprovechando al máximo el soleamiento y reduciendo por tanto el consumo energético al mínimo. Según esto la edificación proyectada mantiene un volumen único, constituido por dos plantas sobre rasante organizadas en torno a un patio y una planta bajo rasante con patio posterior.

La fachada ventilada, la cubierta plana de tipo ajardinada y el sistema de instalaciones propuesto, contribuyen de igual manera al diseño de una vivienda de consumo casi nulo.

Política de Cookies

Las cookies son breves informaciones que se envían y almacenan en el disco duro del ordenador del usuario a través de su navegador cuando éste se conecta a una web. Las cookies se pueden utilizar para recaudar y almacenar datos del usuario mientras está conectado para facilitarle los servicios solicitados y que en ocasiones no se suelen conservar. Las cookies pueden ser propias o de terceros.

Existen varios tipos de cookies:

  • Cookies técnicas que facilitan la navegación del usuario y la utilización de las diferentes opciones o servicios que ofrece la web como identificar la sesión, permitir el acceso a determinadas áreas, facilitar pedidos, compras, cumplimentación de formularios, inscripciones, seguridad, facilitar funcionalidades (vídeos, redes sociales, etc.).
  • Cookies de personalización que permiten al usuario acceder a los servicios según sus preferencias (idioma, navegador, configuración, etc.).
  • Cookies de análisis que permiten el análisis anónimo del comportamiento de los usuarios de la web y que permiten medir la actividad del usuario y elaborar perfiles de navegación con el objetivo de mejorar los sitios web.

Por ello, al acceder a nuestra web, en cumplimiento del artículo 22 de la Ley 34/2002 de Servicios de la Sociedad de la Información, en tratar cookies de análisis, le hemos solicitado su consentimiento para su uso. Todo ello para mejorar nuestros servicios. Utilizamos Google Analytics para recopilar información estadística anónima, como por ejemplo el número de visitantes a nuestra web. Las cookies añadidas por Google Analytics se rigen por las políticas de privacidad de Google Analytics. Si usted lo desea puede desactivar las cookies de Google Analytics.

De todos modos, le informamos que puede activar o desactivar estas cookies siguiendo las instrucciones de su navegador de Internet.