Vivienda Talavera de la Reina
Arquitectura - Residencial

Vivienda Unifamiliar

Talavera de la Reina

Ficha del proyecto
Obra
Vivienda unifamiliar aislada
Tipología
Residencial
Localización
Talavera de la Reina
Toledo
Año
2012
Cliente
Particular
Superficie
240m2

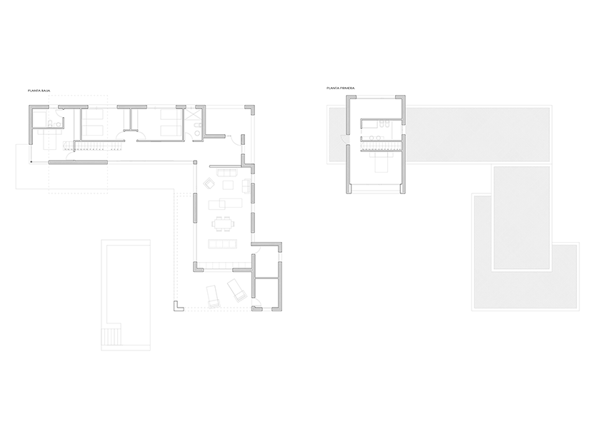
En un entorno natural de encinares, con parcelas de 3000 m2, se desarrolla la vivienda abriéndose con grandes ventanales hacia las vistas de la colina.

El programa y orientación genera que se desarrolle en forma de L, creando la zona de día mediante el salón cocina y la zona de noche con dormitorios. Toda la vivienda se desarrolla en planta baja a excepción del dormitorio principal que genera un volumen que vuela mirando al paisaje y generar sombras sobre planta baja.

Un diseño de fachada ventilada y modulada, marca el ritmo de los huecos de toda la vivienda. Como contraste al volumen blanco del edificio, toda la zona ajardinada y cerramiento de parcela se realiza en acero corten.

Ficha del proyecto
Obra
Vivienda unifamiliar aislada
Tipología
Residencial
Localización
Talavera de la Reina
Toledo
Año
2012
Cliente
Particular
Superficie
240m2
Vivienda Talavera - 1
Vivienda Talavera - 2
Vivienda Talavera - 3
Vivienda Talavera - 4
Vivienda Talavera - 5
Vivienda Talavera - 6

En un entorno natural de encinares, con parcelas de 3000 m2, se desarrolla la vivienda abriéndose con grandes ventanales hacia las vistas de la colina.

El programa y orientación genera que se desarrolle en forma de L, creando la zona de día mediante el salón cocina y la zona de noche con dormitorios. Toda la vivienda se desarrolla en planta baja a excepción del dormitorio principal que genera un volumen que vuela mirando al paisaje y generar sombras sobre planta baja.

Un diseño de fachada ventilada y modulada, marca el ritmo de los huecos de toda la vivienda. Como contraste al volumen blanco del edificio, toda la zona ajardinada y cerramiento de parcela se realiza en acero corten.

Política de Cookies

Las cookies son breves informaciones que se envían y almacenan en el disco duro del ordenador del usuario a través de su navegador cuando éste se conecta a una web. Las cookies se pueden utilizar para recaudar y almacenar datos del usuario mientras está conectado para facilitarle los servicios solicitados y que en ocasiones no se suelen conservar. Las cookies pueden ser propias o de terceros.

Existen varios tipos de cookies:

  • Cookies técnicas que facilitan la navegación del usuario y la utilización de las diferentes opciones o servicios que ofrece la web como identificar la sesión, permitir el acceso a determinadas áreas, facilitar pedidos, compras, cumplimentación de formularios, inscripciones, seguridad, facilitar funcionalidades (vídeos, redes sociales, etc.).
  • Cookies de personalización que permiten al usuario acceder a los servicios según sus preferencias (idioma, navegador, configuración, etc.).
  • Cookies de análisis que permiten el análisis anónimo del comportamiento de los usuarios de la web y que permiten medir la actividad del usuario y elaborar perfiles de navegación con el objetivo de mejorar los sitios web.

Por ello, al acceder a nuestra web, en cumplimiento del artículo 22 de la Ley 34/2002 de Servicios de la Sociedad de la Información, en tratar cookies de análisis, le hemos solicitado su consentimiento para su uso. Todo ello para mejorar nuestros servicios. Utilizamos Google Analytics para recopilar información estadística anónima, como por ejemplo el número de visitantes a nuestra web. Las cookies añadidas por Google Analytics se rigen por las políticas de privacidad de Google Analytics. Si usted lo desea puede desactivar las cookies de Google Analytics.

De todos modos, le informamos que puede activar o desactivar estas cookies siguiendo las instrucciones de su navegador de Internet.