Torre de maniobras
Arquitectura

Torre de maniobras
Bomberos

Villaviciosa de Odón

Ficha del proyecto
Obra
Torre de Maniobras
Tipología
Dotacional
Localización
Parque de bomberos
Villaviciosa de Odón. Madrid
Año
2019
Cliente
Bomberos Comunidad de Madrid
Superficie
220m2

El encargo del proyecto de ejecución y la dirección de obra surge por la gran necesidad de construcción de una torre de maniobras en el Parque de Bomberos existente.

El uso de la torre no es otro que las prácticas de los bomberos en trabajos similares al rescate, descuelgue y simulacros de incendio, con el que se pueden encontrar en situaciones reales.

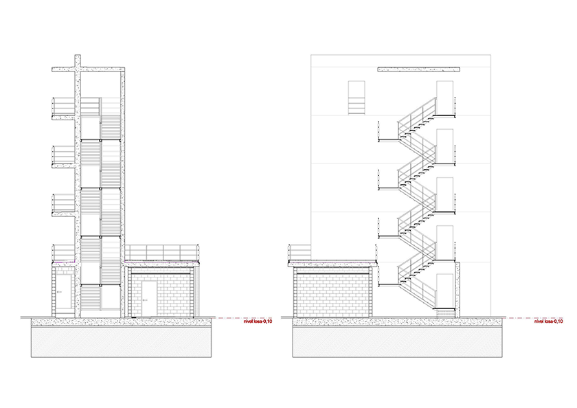
La torre destaca por su rotundidad y predominancia dentro del Parque, siendo el esbelto muro de hormigón visto, el que origina la presencia del edificio, y configura el desarrollo de las cinco plantas que conforman la torre. A una lado del muro sumerge la escalera metálica y al otro los balcones usados para las prácticas de descuelgue. Únicamente es cerrada la planta baja donde se realizan los trabajos de simulacros de incendios y humos.

Ficha del proyecto
Obra
Torre de Maniobras
Tipología
Dotacional
Localización
Parque de bomberos
Villaviciosa de Odón. Madrid
Año
2019
Cliente
Bomberos Comunidad de Madrid
Superficie
220m2
Torre de Bomberos 1
Torre de Bomberos 2
Torre de Bomberos 3
Torre de Bomberos 4
Torre de Bomberos 5
Torre de Bomberos 6

El encargo del proyecto de ejecución y la dirección de obra surge por la gran necesidad de construcción de una torre de maniobras en el Parque de Bomberos existente.

El uso de la torre no es otro que las prácticas de los bomberos en trabajos similares al rescate, descuelgue y simulacros de incendio, con el que se pueden encontrar en situaciones reales.

La torre destaca por su rotundidad y predominancia dentro del Parque, siendo el esbelto muro de hormigón visto, el que origina la presencia del edificio, y configura el desarrollo de las cinco plantas que conforman la torre. A una lado del muro sumerge la escalera metálica y al otro los balcones usados para las prácticas de descuelgue. Únicamente es cerrada la planta baja donde se realizan los trabajos de simulacros de incendios y humos.

Política de Cookies

Las cookies son breves informaciones que se envían y almacenan en el disco duro del ordenador del usuario a través de su navegador cuando éste se conecta a una web. Las cookies se pueden utilizar para recaudar y almacenar datos del usuario mientras está conectado para facilitarle los servicios solicitados y que en ocasiones no se suelen conservar. Las cookies pueden ser propias o de terceros.

Existen varios tipos de cookies:

  • Cookies técnicas que facilitan la navegación del usuario y la utilización de las diferentes opciones o servicios que ofrece la web como identificar la sesión, permitir el acceso a determinadas áreas, facilitar pedidos, compras, cumplimentación de formularios, inscripciones, seguridad, facilitar funcionalidades (vídeos, redes sociales, etc.).
  • Cookies de personalización que permiten al usuario acceder a los servicios según sus preferencias (idioma, navegador, configuración, etc.).
  • Cookies de análisis que permiten el análisis anónimo del comportamiento de los usuarios de la web y que permiten medir la actividad del usuario y elaborar perfiles de navegación con el objetivo de mejorar los sitios web.

Por ello, al acceder a nuestra web, en cumplimiento del artículo 22 de la Ley 34/2002 de Servicios de la Sociedad de la Información, en tratar cookies de análisis, le hemos solicitado su consentimiento para su uso. Todo ello para mejorar nuestros servicios. Utilizamos Google Analytics para recopilar información estadística anónima, como por ejemplo el número de visitantes a nuestra web. Las cookies añadidas por Google Analytics se rigen por las políticas de privacidad de Google Analytics. Si usted lo desea puede desactivar las cookies de Google Analytics.

De todos modos, le informamos que puede activar o desactivar estas cookies siguiendo las instrucciones de su navegador de Internet.