kofe korner - local restauración
Ingeniería

Cálculo de instalaciones

Ficha del proyecto
Obra
Cálculo de instalaciones
Tipología
Ingeniería
Localización
Varias localizaciones
Año
2004 - 2019
Cliente
Particulares
Superficie
Variable

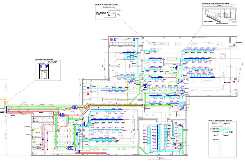
El cálculo de instalaciones siempre estuvo presente en nuestro trabajo, además de su posterior correcta ejecución durante las obras.

Las instalaciones en muchas ocasiones, son tan importantes como muchos elementos del interiorismo, por tanto tratamos de integrarlas en el propio diseño del proyecto, coordinando siempre con el equipo de arquitectura e interiorismo.

Ficha del proyecto
Obra
Cálculo de instalaciones
Tipología
Ingeniería
Localización
Varias localizaciones
Año
2004 - 2019
Cliente
Particulares
Superficie
Variable
Instalaciones - 1
Instalaciones - 2
Instalaciones - 3

El cálculo de instalaciones siempre estuvo presente en nuestro trabajo, además de su posterior correcta ejecución durante las obras.

Las instalaciones en muchas ocasiones, son tan importantes como muchos elementos del interiorismo, por tanto tratamos de integrarlas en el propio diseño del proyecto, coordinando siempre con el equipo de arquitectura e interiorismo.

Política de Cookies

Las cookies son breves informaciones que se envían y almacenan en el disco duro del ordenador del usuario a través de su navegador cuando éste se conecta a una web. Las cookies se pueden utilizar para recaudar y almacenar datos del usuario mientras está conectado para facilitarle los servicios solicitados y que en ocasiones no se suelen conservar. Las cookies pueden ser propias o de terceros.

Existen varios tipos de cookies:

  • Cookies técnicas que facilitan la navegación del usuario y la utilización de las diferentes opciones o servicios que ofrece la web como identificar la sesión, permitir el acceso a determinadas áreas, facilitar pedidos, compras, cumplimentación de formularios, inscripciones, seguridad, facilitar funcionalidades (vídeos, redes sociales, etc.).
  • Cookies de personalización que permiten al usuario acceder a los servicios según sus preferencias (idioma, navegador, configuración, etc.).
  • Cookies de análisis que permiten el análisis anónimo del comportamiento de los usuarios de la web y que permiten medir la actividad del usuario y elaborar perfiles de navegación con el objetivo de mejorar los sitios web.

Por ello, al acceder a nuestra web, en cumplimiento del artículo 22 de la Ley 34/2002 de Servicios de la Sociedad de la Información, en tratar cookies de análisis, le hemos solicitado su consentimiento para su uso. Todo ello para mejorar nuestros servicios. Utilizamos Google Analytics para recopilar información estadística anónima, como por ejemplo el número de visitantes a nuestra web. Las cookies añadidas por Google Analytics se rigen por las políticas de privacidad de Google Analytics. Si usted lo desea puede desactivar las cookies de Google Analytics.

De todos modos, le informamos que puede activar o desactivar estas cookies siguiendo las instrucciones de su navegador de Internet.