kofe korner - local restauración
Arquitectura - Residencial

8 Viviendas Unifamiliares

Arenas de San Pedro

Ficha del proyecto
Obra
8 Viviendas Unifamiliares
Tipología
Residencial
Localización
Arenas de San Pedro
Ávila
Año
2010
Cliente
Particular
Superficie
2000m2

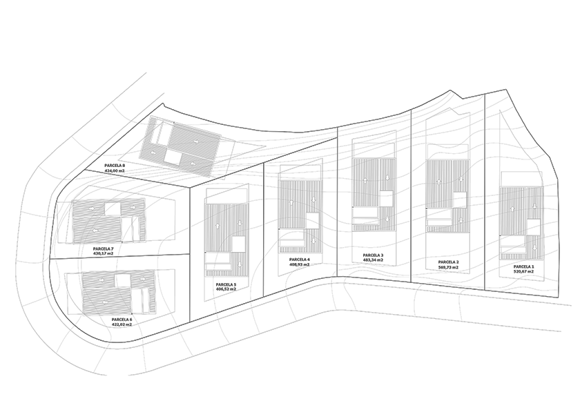
Situados en un entorno natural frente a un pequeño pantano y con la sierra de Gredos como paisaje de fondo, nos encontramos con un solar escarpado de gran pendiente donde diseñar 8 viviendas unifamiliares. La sección del terreno y las vistas hacen que sean dos premisas básicas a tener encuentra, llegando a una solución de cubierta inclinada a un agua que acompañe la orografía del terreno, se integre con el paisaje y a la vez todas las viviendas se orienten hacia el pantano.

Ficha del proyecto
Obra
8 Viviendas Unifamiliares
Tipología
Residencial
Localización
Arenas de San Pedro
Ávila
Año
2010
Cliente
Particular
Superficie
2000m2
Arenas - 1
Arenas - 2
Arenas - 3
Arenas - 4
Arenas - 5
Arenas - 6
Arenas - 7
Arenas - 8

Situados en un entorno natural frente a un pequeño pantano y con la sierra de Gredos como paisaje de fondo, nos encontramos con un solar escarpado de gran pendiente donde diseñar 8 viviendas unifamiliares. La sección del terreno y las vistas hacen que sean dos premisas básicas a tener encuentra, llegando a una solución de cubierta inclinada a un agua que acompañe la orografía del terreno, se integre con el paisaje y a la vez todas las viviendas se orienten hacia el pantano.

Política de Cookies

Las cookies son breves informaciones que se envían y almacenan en el disco duro del ordenador del usuario a través de su navegador cuando éste se conecta a una web. Las cookies se pueden utilizar para recaudar y almacenar datos del usuario mientras está conectado para facilitarle los servicios solicitados y que en ocasiones no se suelen conservar. Las cookies pueden ser propias o de terceros.

Existen varios tipos de cookies:

  • Cookies técnicas que facilitan la navegación del usuario y la utilización de las diferentes opciones o servicios que ofrece la web como identificar la sesión, permitir el acceso a determinadas áreas, facilitar pedidos, compras, cumplimentación de formularios, inscripciones, seguridad, facilitar funcionalidades (vídeos, redes sociales, etc.).
  • Cookies de personalización que permiten al usuario acceder a los servicios según sus preferencias (idioma, navegador, configuración, etc.).
  • Cookies de análisis que permiten el análisis anónimo del comportamiento de los usuarios de la web y que permiten medir la actividad del usuario y elaborar perfiles de navegación con el objetivo de mejorar los sitios web.

Por ello, al acceder a nuestra web, en cumplimiento del artículo 22 de la Ley 34/2002 de Servicios de la Sociedad de la Información, en tratar cookies de análisis, le hemos solicitado su consentimiento para su uso. Todo ello para mejorar nuestros servicios. Utilizamos Google Analytics para recopilar información estadística anónima, como por ejemplo el número de visitantes a nuestra web. Las cookies añadidas por Google Analytics se rigen por las políticas de privacidad de Google Analytics. Si usted lo desea puede desactivar las cookies de Google Analytics.

De todos modos, le informamos que puede activar o desactivar estas cookies siguiendo las instrucciones de su navegador de Internet.